Garvaregatan 11
Garvaregatan 11
Garvaregatan 11
Garvaregatan 11
Garvaregatan 11
Garvaregatan 11
Garvaregatan 11
Garvaregatan 11
Garvaregatan 11
Preview image
Preview image
Preview image
Preview image
Preview image
Preview image
Preview image
Preview image
Preview image

Beskrivning

Lokal på fantastiskt läge i Repslagarhuset, gamla sjukhusområdet! Ta chansen att etablera er i välkända lokaler med stor potential.

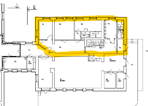
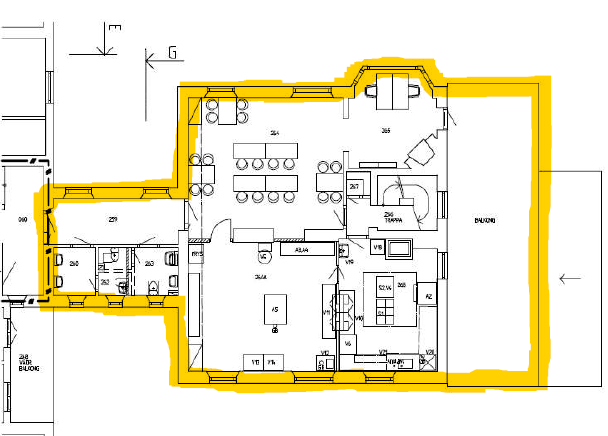
Lokalen som ligger på plan 1 och 2 har tidigare använts som restaurangskola och den är fortfarande full utrustad för det ändamålet. Annan möjlig användning kan vara t ex cateringverksamhet el dyl, vi är öppna för förslag.

Byggnaden har ett klassiskt utseende och är uppförd som sjukhus 1869. Övriga byggnader är uppförda under mitten av 1900-talet. Närhet till både centrum, hamnen och fina rekreationsområden. Hiss finns liksom en stor parkering utanför byggnaden.

Övriga hyresgäster på fastigheten är vård i Region Kalmars regi, Hemtjänsten Oskarshamns kommun och Familjebyrån.

Här finns även stora möjligheter att växa då det finns lediga ytor i fastigheten.

Kontakta oss gärna för en visning så berättar vi mer!

Intresseanmälan

Fakta

Fastigheter

Hälsan 22

Kommun

Oskarshamn

Adress

Garvaregatan 11, 572 30 Oskarshamn

Kontaktpersoner

Joel Åkerlund

076 103 98 91

Förvaltningsadministratör
Erik Wanzelius
Förvaltningsadministratör

073 837 90 45